Plan maison en u : guide complet pour optimiser votre espace
Aménagements et agencements pour une maison en U fonctionnelle et agréable
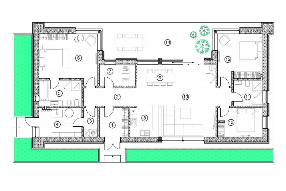
Concevoir une maison en U ne se limite pas à choisir une forme sur le plan. L’aménagement intérieur doit être pensé minutieusement afin d’exploiter au mieux les avantages intrinsèques de cette configuration. La première étape consiste à répartir intelligemment les pièces selon leur usage et la circulation au sein de la maison.
Dans la majeure partie des projets, on place la zone jour, comprenant la cuisine, le salon et la salle à manger, au centre du U. Cette localisation favorise un accès direct à l’espace extérieur protégé, renforçant ainsi la sensation d’ouverture et de connexion avec la nature, même à l’intérieur.
En plaçant cette espace de vie là où la lumière naturelle est maximale, grâce aux grandes baies vitrées, on crée un environnement lumineux et agréable tout au long de la journée. Par exemple, des propriétaires peuvent profiter d’un petit-déjeuner éclairé par le soleil matinal, assis face à un jardin convivial. Les ailes du U sont dédiées aux espaces nuit et aux zones plus intimes.

Il est judicieux de regrouper les chambres dans une aile pour instaurer une zone calme et préservée, éloignée du bruit du salon et de la cuisine. La suite parentale peut être positionnée en bout d’aile, ce qui garantit une tranquillité maximale et une possibilité d’aménagement d’un espace privatif complet : dressing, salle d’eau et parfois un petit salon d’ambiance cocooning.
Pour les familles, la configuration en U offre la possibilité d’accueillir plusieurs chambres, voire un studio indépendant. Cela s’avère idéal pour des adolescents cherchant leur propre indépendance ou même pour héberger des membres de la famille élargie. Cette flexibilité permet aussi de prévoir un bureau, essentiel pour le télétravail, avec une entrée séparée pour ne pas perturber les espaces privés.
Il est aussi utile de considérer les pièces techniques et de service. Rassembler le garage, un cellier et la cuisine d’un même côté permet de faciliter les déplacements quotidiens. De même, bénéficier d’un accès direct entre garage et cuisine simplifie grandement l’organisation du foyer, notamment lors du chargement des courses.
Pour les personnes à mobilité réduite, un plan en U de plain-pied s’avère particulièrement adapté. La circulation est fluide, les couloirs suffisamment larges, et l’orientation des différents espaces favorise un accès simple au patio. Ces ajustements spécifiques, bien intégrés dès la conception, garantissent confort et autonomie à tous les habitants.
Optimisation de la lumière naturelle dans une maison en U : principes et astuces
L’un des grands atouts du plan maison en U réside dans la luminosité abondante qu’il permet d’offrir à ses habitants. En 2026, alors que la quête de bien-être à domicile est au cœur des préoccupations, exploiter cette ressource naturelle devient une priorité dans la conception d’une maison.
La forme en U crée un patio central qui agit comme un véritable puits de lumière. Les grandes baies vitrées et fenêtres orientées vers ce cœur ouvert captent le soleil tout au long de la journée, illuminant simultanément plusieurs pièces stratégiques. Ce flux lumineux optimise non seulement le confort visuel mais réduit aussi la consommation énergétique liée à l’éclairage artificiel.
Cependant, réussir cette exposition demande une réflexion approfondie sur l’orientation du terrain et la position des ouvertures. L’idéal est d’implanter la maison de manière à ce que le patio soit orienté au sud, garantissant un ensoleillement optimal du matin au soir. Dans cette disposition, les rayons du soleil pénètrent pleinement les espaces de vie, en particulier pendant les mois d’hiver.
Pour maîtriser cette luminosité sans créer d’effets indésirables, comme un surchauffe estivale, les architectes intègrent des vitrages à isolation thermique renforcée et des protections telles que stores extérieurs, pergolas ou volets intelligents. Certains projets innovent même avec des verrières ou des puits de lumière placés en toiture pour amplifier encore plus la lumière naturelle au sein des pièces centrales, tout en maintenant un excellent confort thermique.
La hauteur sous plafond joue aussi un rôle déterminant. En augmentant celle-ci, même de quelques dizaines de centimètres, on favorise une diffusion plus homogène de la lumière, réduisant ainsi les zones d’ombre et offrant une atmosphère plus aérée. Cette technique est particulièrement appréciée dans le salon ou la salle à manger, contribuant à une ambiance chaleureuse et généreuse.
Enfin, la continuité visuelle entre intérieur et extérieur est renforcée grâce à des baies d’angle et des matériaux uniformes qui prolongent les revêtements de sol du salon jusqu’au patio. Ce jeu de transparence décuple la perception d’espace et invite le jardin à devenir un prolongement naturel du lieu de vie.

Choisir le terrain idéal pour un plan maison en U : critères et conseils
La réalisation d’un projet de maison en U commence avant tout par la sélection d’un terrain approprié. En effet, cette architecture impose certaines conditions spécifiques liées à sa forme et sa surface au sol importante, souvent supérieure à 200 m². Pour un confort optimal, il est recommandé de disposer d’une parcelle d’au moins 800 m².
Un terrain plat est préférentiel pour cette construction. Une surface plane facilite la distribution homogène des deux ailes et du corps central, réduit les coûts de terrassement et évite les complications liées à la gestion des eaux. Cependant, une légère pente n’est pas rédhibitoire : elle peut être mise à profit pour créer des niveaux décalés apportant du relief et du cachet à la maison.
Les terrains en longueur s’adaptent parfaitement au plan en U. Ils permettent une orientation judicieuse des pièces principales vers le sud, maximisant ainsi la luminosité et le confort thermique. Et aussi, cette disposition offre souvent un effet de protection naturelle contre les vents dominants grâce aux murs porteurs des ailes.
La topographie et l’environnement immédiat doivent également être pris en considération. La présence d’arbres, les servitudes, les règles d’urbanisme imposées par le PLU (Plan Local d’Urbanisme) ou encore les contraintes liées aux distances minimales avec les voisins influent sur le déploiement de la maison. Il est donc essentiel, dès les premières phases du projet, de collaborer étroitement avec un architecte qui intégrera ces éléments en amont.
Enfin, le choix du terrain conditionne la pérennité du projet. Une bonne orientation, associée à la configuration du plan en U, permet d’anticiper les besoins énergétiques et d’inclure des approches bioclimatiques : toiture végétalisée, panneaux photovoltaïques, récupération des eaux pluviales. Ainsi, la maison devient un lieu de vie à la fois confortable, économe et respectueux de l’environnement.
